VI sprat
Stan broj 56
ukupna površina / 39,55 m2
sprat / VI sprat
orijentacija / PD
detaljna površina prostorija:
1 – hodnik / 3,12 m2 (keramika)
2 – d. boravak i trpezarija / 16,01 m2 (laminat)
3 – kuhinja / 4,34 m2 (keramika)
4 – spavaća soba / 9,06 m2 (laminat)
5 – kupatilo / 4,75 m2 (keramika)
6 – lođa / 2,27 m2 (keramika)
Stan broj 57
ukupna površina / 39,55 m2
sprat / VI sprat
orijentacija / PD
detaljna površina prostorija:
1 – hodnik / 3,12 m2 (keramika)
2 – d. boravak i trpezarija / 16,01 m2 (laminat)
3 – kuhinja / 4,34 m2 (keramika)
4 – spavaća soba / 9,06 m2 (laminat)
5 – kupatilo / 4,75 m2 (keramika)
6 – lođa / 2,27 m2 (keramika)
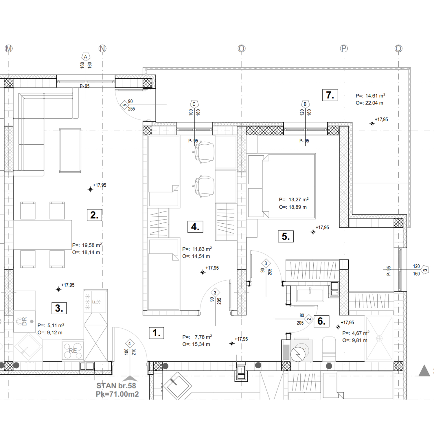
Stan broj 58
ukupna površina / 71,00 m2
sprat / VI sprat
orijentacija / PD
detaljna površina prostorija:
1 – hodnik / 7,54 m2 (keramika)
2 – d. boravak i trpezarija / 18,99 m2 (laminat)
3 – kuhinja / 4,95 m2 (keramika)
4 – spavaća soba / 11,47 m2 (laminat)
5 – spavaća soba 2 / 12,87 m2 (laminat)
6 – kupatilo / 4,53 m2 (keramika)
7 – lođa / 10,63 m2 (keramika)
Stan broj 59
ukupna površina / 106,22 m2
sprat / VI sprat
orijentacija / Sportska dvorana – Fudbalski tereni
detaljna površina prostorija:
1 – hodnik / 14,23 m2 (keramika)
2 – d. boravak i trpezarija / 21,51 m2 (laminat)
3 – kuhinja / 6,38 m2 (keramika)
4 – spavaća soba 1 / 10,29 m2 (laminat)
5 – spavaća soba 2 / 14,30 m2 (laminat)
6 – spavaća soba 3 / 13,06 m2 (laminat)
7 – spavaća soba 4 / 9,03 m2 (laminat)
8 – kupatilo / 4,79 m2 (keramika)
9 – WC / 2,30 m2 (keramika)
10 – lođa / 7,93 m2 (keramika)
11 – lođa / 2,40 m2 (keramika)
Stan broj 60
ukupna površina / 39,55 m2
sprat / VI sprat
orijentacija / Fudbalski tereni
detaljna površina prostorija:
1 – hodnik / 3,12 m2 (keramika)
2 – d. boravak i trpezarija / 16,01 m2 (laminat)
3 – kuhinja / 4,34 m2 (keramika)
4 – spavaća soba / 9,06 m2 (laminat)
5 – kupatilo / 4,75 m2 (keramika)
6 – lođa / 2,27 m2 (keramika)
Stan broj 61
ukupna površina / 39,55 m2
sprat / VI sprat
orijentacija / Fudbalski tereni
detaljna površina prostorija:
1 – hodnik / 3,12 m2 (keramika)
2 – d. boravak i trpezarija / 16,01 m2 (laminat)
3 – kuhinja / 4,34 m2 (keramika)
4 – spavaća soba / 9,06 m2 (laminat)
5 – kupatilo / 4,75 m2 (keramika)
6 – lođa / 2,27 m2 (keramika)
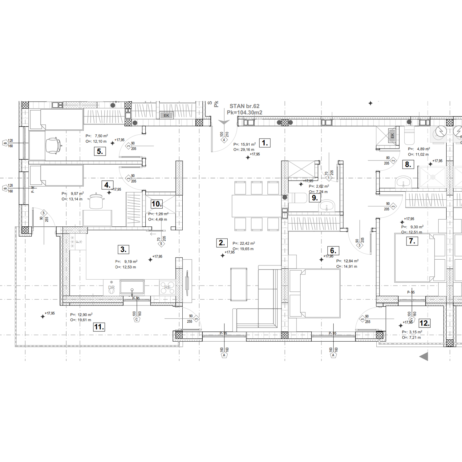
Stan broj 62
ukupna površina / 104,30 m2
sprat / VI sprat
orijentacija / Fudbalski tereni – Rafinerija ulja
detaljna površina prostorija:
1 – hodnik / 15,43 m2 (keramika)
2 – d. boravak i trpezarija / 21,74 m2 (laminat)
3 – kuhinja / 8,91 m2 (keramika)
4 – spavaća soba 1 / 9,28 m2 (laminat)
5 – spavaća soba 2 / 7,27 m2 (laminat)
6 – spavaća soba 3 / 12,45 m2 (laminat)
7 – spavaća soba 4 / 9,03 m2 (laminat)
8 – kupatilo / 4,75 m2 (keramika)
9 – WC / 2,54 m2 (keramika)
10 – ostava / 1,22 m2 (keramika)
11 – lođa / 9,39 m2 (keramika)
12 – lođa / 2,30 m2 (keramika)
Stan broj 63
ukupna površina / 105,15 m2
sprat / VI sprat
orijentacija / Rafinerija ulja – PD
detaljna površina prostorija:
1 – predprostor / 2,79 m2 (keramika)
2 – d. boravak i trpezarija / 32,24 m2 (laminat)
3 – kuhinja / 6,04 m2 (keramika)
4 – spavaća soba 1 / 13,07 m2 (laminat)
5 – spavaća soba 2 / 9,33 m2 (laminat)
6 – spavaća soba 3 / 7,33 m2 (laminat)
7 – kupatilo / 4,00 m2 (keramika)
8 – kupatilo / 3,90 m2 (keramika)
9 – WC / 1,92 m2 (keramika)
10 – ostava / 1,78 m2 (keramika)
11 – lođa / 10,41 m2 (keramika)
12 – hodnik/ 12,34 m2 (keramika)
Sve navedene površine izražene su u skladu s arhitektonskim planovima i mjerenjima. Površine označene s O predstavljaju obračunsku površinu, dok površine označene s P predstavljaju korisnu površinu. Zbog razlika u mjernim metodama i tolerancije u završnim radovima od ±3%, moguće su minimalne razlike u odnosu na navedene vrijednosti.
Više informacija vezane za orijentaciju stanova možete pronaći ovdje.
Za detaljan pregled svih dostupnih stanova, njihovih kvadratura, rasporeda i karakteristika, kliknite na dugme ispod i istražite kompletnu ponudu.
